相模原市中央区・緑区・橋本エリアの売買&賃貸不動産物件情報リビングホーム

リビングホームマスコット 有限会社リビングホーム

042-770-6050

[営業時間] 9:00~18:00 [定休日] 水曜日

最終更新: 2022年2月28日

トップページ › 平塚市 › 競売0409・ 平塚市出縄3LDK一戸建ての物件詳細

  • 最近見た物件
  • お気に入り物件

競売0409・ 平塚市出縄3LDK一戸建ての物件詳細

競売・ 平塚市出縄3LDK一戸建て

事件番号:令和07年(ケ)第118号

情報更新日:2026年03月15日 NEW

JR東海道本線「平塚」駅 概ね北西方 約5,300mバス停留所「下出縄」 徒歩約4分の閑静な住宅街。H10年築3LDK建物は宅地内Pあります
新築に拘らない、少しでも安価に物件を買いたい方におすすめの競売不動産!
競売だからこそのお手頃価格で落札を!!競売物件であっても住宅ローン&リフォームローンのご...
コメントを見る

ここがポイント
  • 平塚駅バス便の閑静な住宅街区立地です
    H10年築3LDK建物は宅地内Pあります
    入札期間:04月04日~8年04月09日
    開札期日:令和08年04月15日
    買受申出保証金 678,000円


最寄り駅 徒歩
住所
価格 面積
間取り
種別
築年月
JR東海道本線(東京~熱海) 『平塚駅』 バス30分 下出縄 停歩4分
神奈川県平塚市出縄
339万円 建:69.56㎡
土:77.33㎡
間取り:3LDK
一戸建て
1998年04月
お気に入りにする 印刷用ページ
042-770-6050
お問合せ 空室確認・下見依頼など

【営業時間】9:00〜18:00
【定休日】毎週水曜日・隔週火曜日・GW・夏季休業・年末年始

前へ 平塚駅バス平塚市出縄3LDK一戸建て物件不動産任意売却競売物件入札サポートリビングホーム 次へ

平塚駅バス平塚市出縄3LDK一戸建て物件不動産任意売却競売物件入札サポートリビングホーム

拡大する
  • 平塚駅バス平塚市出縄3LDK一戸建て物件不動産任意売却競売物件入札サポートリビングホーム
  • 平塚駅バス平塚市出縄3LDK一戸建て物件不動産任意売却競売物件入札サポートリビングホーム
  • 平塚駅バス平塚市出縄3LDK一戸建て物件不動産任意売却競売物件入札サポートリビングホーム
  • 平塚駅バス平塚市出縄3LDK一戸建て物件不動産任意売却競売物件入札サポートリビングホーム
  • 平塚駅バス平塚市出縄3LDK一戸建て物件不動産任意売却競売物件入札サポートリビングホーム
  • 平塚駅バス平塚市出縄3LDK一戸建て物件不動産任意売却競売物件入札サポートリビングホーム
  • 平塚駅バス平塚市出縄3LDK一戸建て物件不動産任意売却競売物件入札サポートリビングホーム
  • 平塚駅バス平塚市出縄3LDK一戸建て物件不動産任意売却競売物件入札サポートリビングホーム
  • 平塚駅バス平塚市出縄3LDK一戸建て物件不動産任意売却競売物件入札サポートリビングホーム
  • 平塚駅バス平塚市出縄3LDK一戸建て物件不動産任意売却競売物件入札サポートリビングホーム
  • 平塚駅バス平塚市出縄3LDK一戸建て物件不動産任意売却競売物件入札サポートリビングホーム
  • 平塚駅バス平塚市出縄3LDK一戸建て物件不動産任意売却競売物件入札サポートリビングホーム
  • 平塚駅バス平塚市出縄3LDK一戸建て物件不動産任意売却競売物件入札サポートリビングホーム
  • 平塚駅バス平塚市出縄3LDK一戸建て物件不動産任意売却競売物件入札サポートリビングホーム
  • 平塚駅バス平塚市出縄3LDK一戸建て物件不動産任意売却競売物件入札サポートリビングホーム
  • 平塚駅バス平塚市出縄3LDK一戸建て物件不動産任意売却競売物件入札サポートリビングホーム
  • 平塚駅バス平塚市出縄3LDK一戸建て物件不動産任意売却競売物件入札サポートリビングホーム
  • 平塚駅バス平塚市出縄3LDK一戸建て物件不動産任意売却競売物件入札サポートリビングホーム
  • 平塚駅バス平塚市出縄3LDK一戸建て物件不動産任意売却競売物件入札サポートリビングホーム

物件概要

物件名 競売0409・ 平塚市出縄3LDK一戸建て
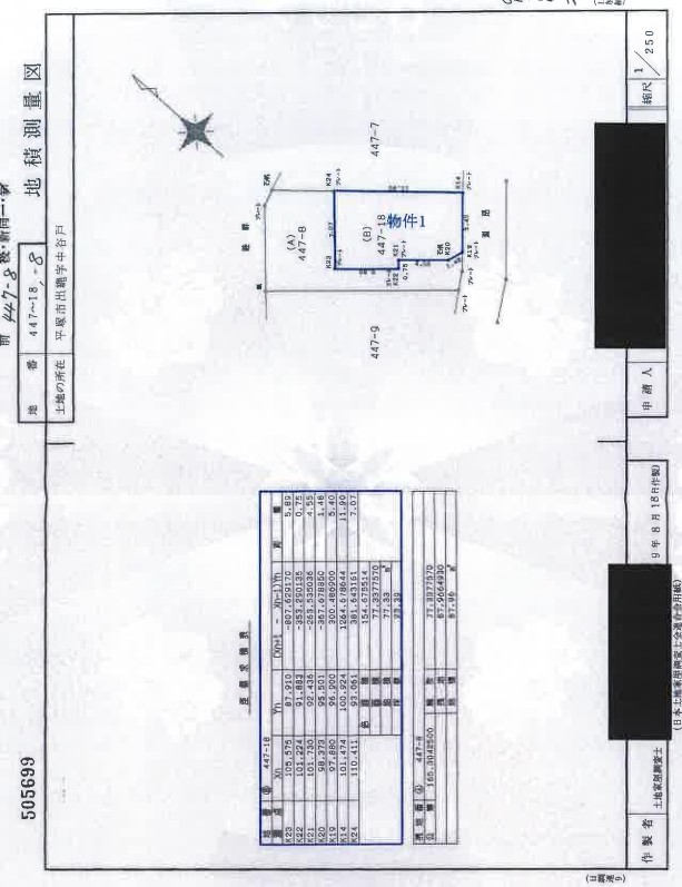
所在地 神奈川県平塚市出縄 周辺地図
交通 JR東海道本線(東京~熱海) 『平塚駅』 バス30分 下出縄 停歩4分
価格 339万円
坪単価 ㎡単価
その他料金 物件価格は売却基準額となり、実際の入札・落札価格とは異なります。詳細はお問い合わせください。
入札にあたっては事前に売買基準価格の20%相当の買受申出保証金の納付が必要(落札出来ない場合は返金)となります。
駐車場 敷地内に有(1台分)
バイク置き場 駐輪場
間取り 3LDK 間取り詳細 1階 34.78m2 2階 26.51m2 建物面積
土地面積
建:69.56㎡
土:77.33㎡
種別/構造 一戸建て/木造 築年月 1998年04月 引渡し 落札、売却決定後になります
現況 占有者あり 総戸数/販売戸数 -/- 土地権利 所有権
借地料 都市計画 市街化区域 用途地域 第一種低層住居専用地域
地目 宅地 地勢 平坦
接道状況 東側道路に面す
セットバック 主要採光面 私道負担面積
建ぺい率 50% 容積率 80%
設備 追い焚き|シャワー付き洗面化粧台|シャワートイレ|トイレ数:1|クローゼット|床下収納|ガスコンロ|システムキッチン|オープンキッチン|給湯|3点給湯|フローリング|バルコニー|TVモニタ付インタホン|公営水道|プロパンガス|本下水道|
条件
備考 競売物件の場合には建物室内の見学は一切できません。
入居にあたり室内のリフォームを要す場合があります。(落札者負担)
開札前に債権者により取り下げとなる場合があります
対象物件が賃貸中の場合引渡しが6ヶ月猶予される場合があります。
競売サポート費用の詳細は以下の「競売不動産購入サポート」をご覧ください。
更新日 2026年03月15日 情報有効期限 2026年03月29日
お問合せ番号 取引形態 仲介
外部リンク 競売不動産物件購入サポート
YouTube https://www.youtube.com/watch?v=9IZzRWNkBDU

※各種情報と現状に差異がある場合は、現状優先となります。

お問合せ 空室確認・下見依頼など

物件周辺地図

ページトップ