相模原市中央区・緑区・橋本エリアの売買&賃貸不動産物件情報リビングホーム

リビングホームマスコット 有限会社リビングホーム

042-770-6050

[営業時間] 9:00~18:00 [定休日] 水曜日

最終更新: 2022年2月28日

トップページ › 秦野市 › 競売0212・渋沢駅徒歩圏!秦野市渋沢三丁目3LDK一戸建の物件詳細

  • 最近見た物件
  • お気に入り物件

競売0212・渋沢駅徒歩圏!秦野市渋沢三丁目3LDK一戸建の物件詳細

競売・駅徒歩圏!秦野市渋沢三丁目一戸建

事件番号:令和07年(ケ)第97号

情報更新日:2026年01月25日 NEW

小田急小田原線「渋沢」駅 南東方 約1.6km(道路距離) 徒歩約20分「渋沢相互住宅自治会館前」バス停(コミュニティ) 徒歩約4分の住宅街に建つオール電化3LDK建物はカースペース2台付分
新築に拘らない、少しでも安価に物件を買いたい方におすすめの競売不動産!
競売だからこそのお手頃価格で落札を!...
コメントを見る

ここがポイント
  • 小田急線渋沢駅徒歩圏の平坦閑静な住宅街区
    H23年築3LDK建物は宅地内P2台分付
    入札期間:02月05日~8年02月12日
    開札期日:令和08年02月18日
    買受申出保証金 1,864,000円


最寄り駅 徒歩
住所
価格 面積
間取り
種別
築年月
小田急線 『渋沢駅』
神奈川県秦野市渋沢3丁目
932万円 建:90.26㎡
土:128.35㎡
間取り:3LDK
一戸建て
2011年03月
お気に入りにする 印刷用ページ
042-770-6050
お問合せ 空室確認・下見依頼など

【営業時間】9:00〜18:00
【定休日】毎週水曜日・隔週火曜日・GW・夏季休業・年末年始

前へ 渋沢駅徒歩圏秦野市渋沢3丁目一戸建て物件不動産任意売却競売物件購入入札サポートリビングホーム 次へ

渋沢駅徒歩圏秦野市渋沢3丁目一戸建て物件不動産任意売却競売物件購入入札サポートリビングホーム

拡大する
  • 渋沢駅徒歩圏秦野市渋沢3丁目一戸建て物件不動産任意売却競売物件購入入札サポートリビングホーム
  • 渋沢駅徒歩圏秦野市渋沢3丁目一戸建て物件不動産任意売却競売物件購入入札サポートリビングホーム
  • 渋沢駅徒歩圏秦野市渋沢3丁目一戸建て物件不動産任意売却競売物件購入入札サポートリビングホーム
  • 渋沢駅徒歩圏秦野市渋沢3丁目一戸建て物件不動産任意売却競売物件購入入札サポートリビングホーム
  • 渋沢駅徒歩圏秦野市渋沢3丁目一戸建て物件不動産任意売却競売物件購入入札サポートリビングホーム
  • 渋沢駅徒歩圏秦野市渋沢3丁目一戸建て物件不動産任意売却競売物件購入入札サポートリビングホーム
  • 渋沢駅徒歩圏秦野市渋沢3丁目一戸建て物件不動産任意売却競売物件購入入札サポートリビングホーム
  • 渋沢駅徒歩圏秦野市渋沢3丁目一戸建て物件不動産任意売却競売物件購入入札サポートリビングホーム
  • 渋沢駅徒歩圏秦野市渋沢3丁目一戸建て物件不動産任意売却競売物件購入入札サポートリビングホーム
  • 渋沢駅徒歩圏秦野市渋沢3丁目一戸建て物件不動産任意売却競売物件購入入札サポートリビングホーム
  • 渋沢駅徒歩圏秦野市渋沢3丁目一戸建て物件不動産任意売却競売物件購入入札サポートリビングホーム
  • 渋沢駅徒歩圏秦野市渋沢3丁目一戸建て物件不動産任意売却競売物件購入入札サポートリビングホーム
  • 渋沢駅徒歩圏秦野市渋沢3丁目一戸建て物件不動産任意売却競売物件購入入札サポートリビングホーム
  • 渋沢駅徒歩圏秦野市渋沢3丁目一戸建て物件不動産任意売却競売物件購入入札サポートリビングホーム
  • 渋沢駅徒歩圏秦野市渋沢3丁目一戸建て物件不動産任意売却競売物件購入入札サポートリビングホーム
  • 渋沢駅徒歩圏秦野市渋沢3丁目一戸建て物件不動産任意売却競売物件購入入札サポートリビングホーム
  • 渋沢駅徒歩圏秦野市渋沢3丁目一戸建て物件不動産任意売却競売物件購入入札サポートリビングホーム
  • 渋沢駅徒歩圏秦野市渋沢3丁目一戸建て物件不動産任意売却競売物件購入入札サポートリビングホーム

物件概要

物件名 競売0212・渋沢駅徒歩圏!秦野市渋沢三丁目3LDK一戸建
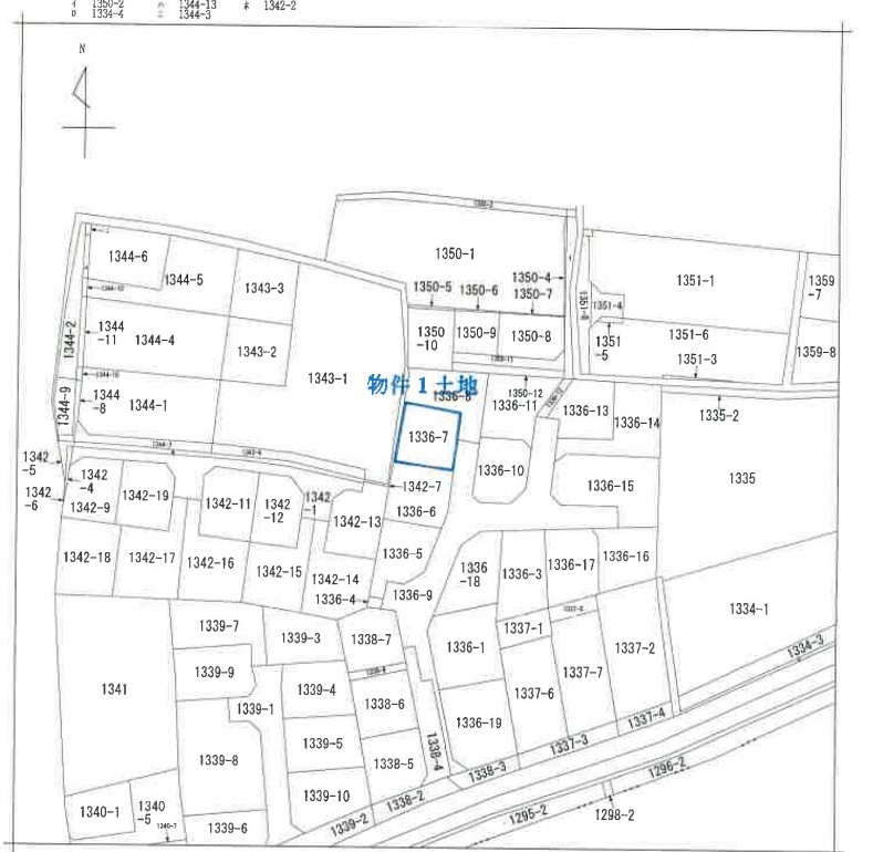
所在地 神奈川県秦野市渋沢3丁目 周辺地図
交通 小田急線 『渋沢駅』
価格 932万円
坪単価 ㎡単価
その他料金 物件価格は売却基準額となり、実際の入札・落札価格とは異なります。詳細はお問い合わせください。
入札にあたっては事前に売買基準価格の20%相当の買受申出保証金の納付が必要(落札出来ない場合は返金)となります。
駐車場 敷地内に有(2台分)
バイク置き場 駐輪場
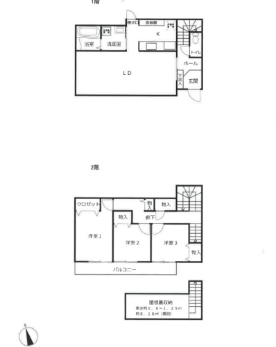
間取り 3LDK 間取り詳細 グルニエ 建物面積
土地面積
建:90.26㎡
土:128.35㎡
種別/構造 一戸建て/- 築年月 2011年03月 引渡し 落札、売却決定後になります
現況 占有者あり 総戸数/販売戸数 -/- 土地権利 所有権
借地料 都市計画 市街化区域 用途地域 第一種低層住居専用地域
地目 宅地 地勢 平坦
接道状況 東側道路に面す
セットバック 主要採光面 私道負担面積
建ぺい率 50% 容積率 100%
設備 追い焚き|シャワー付き洗面化粧台|シャワートイレ|トイレ数:2|クローゼット|床下収納|IHコンロ|システムキッチン|カウンターキッチン|対面式キッチン|オール電化|給湯|3点給湯|フローリング|バルコニー|TVモニタ付インタホン|ペアガラス|公営水道|本下水道|
条件
備考 競売物件の場合には建物室内の見学は一切できません。
入居にあたり室内のリフォームを要す場合があります。(落札者負担)
開札前に債権者により取り下げとなる場合があります
対象物件が賃貸中の場合引渡しが6ヶ月猶予される場合があります。
競売サポート費用の詳細は以下の「競売不動産購入サポート」をご覧ください。
更新日 2026年01月25日 情報有効期限 2026年02月08日
お問合せ番号 取引形態 仲介
外部リンク 競売不動産物件購入サポート
YouTube https://www.youtube.com/watch?v=9IZzRWNkBDU

※各種情報と現状に差異がある場合は、現状優先となります。

お問合せ 空室確認・下見依頼など

物件周辺地図

ページトップ